物件情報

建物+土地
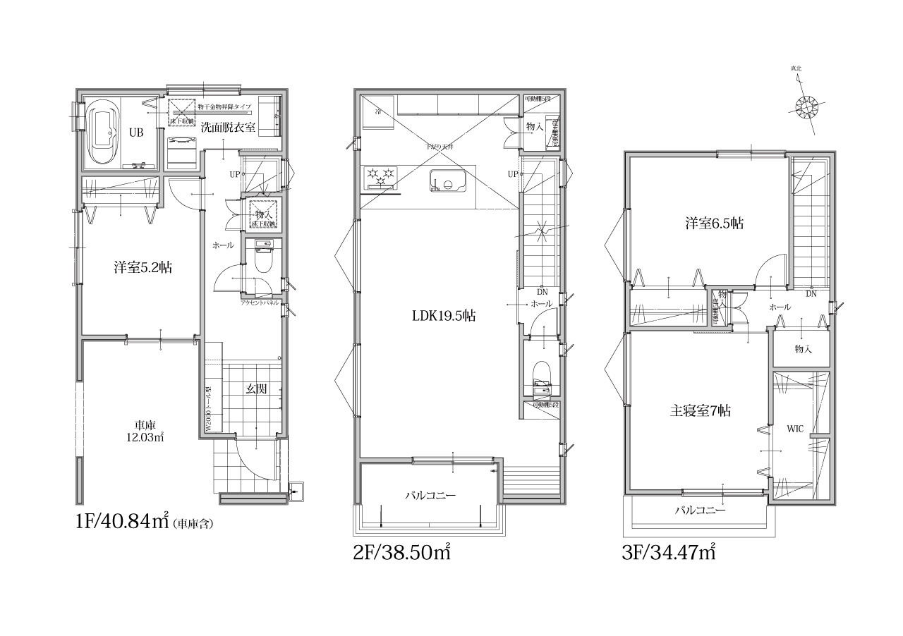
ラビングタウン東狭山ヶ丘1丁目65 | 断熱性能が高く季節を通じて快適に過ごせるZEH水準省エネ住宅。LDK19.5帖。キッチンと居室を区切った天井がリラックスした雰囲気に。

ラビングタウン東狭山ヶ丘1丁目65 | 断熱性能が高く季節を通じて快適に過ごせるZEH水準省エネ住宅。LDK19.5帖。キッチンと居室を区切った天井がリラックスした雰囲気に。
4,080万円 / 3LDK+WIC(税込)
住所
埼玉県所沢市東狭山ヶ丘1丁目
交通
西武池袋線「狭山ヶ丘」駅徒歩9分
学区
宮前小学校 徒歩9分 狭山ヶ丘中学校 徒歩12分 桑の実こども園 徒歩9分 さやまが丘保育園 徒歩10分 角栄幼稚園 徒歩10分 こでまり幼稚園 徒歩15分
お店
オザム東狭山ヶ丘店 徒歩5分 業務スーパー小手指店 徒歩11分 ファミリーマート東狭山ヶ丘1丁目店 徒歩2分
建物面積
113.81㎡(約34.42坪)車庫12.03㎡含
土地面積
70.70㎡(約21.38坪)実測※他通路持分58㎡×1254/6188有

西武池袋線「狭山ヶ丘」駅徒歩9分。周辺に買物施設やクリニックが点在した便利なエリアです。 3LDK+WICで2階LDKは19.5帖、キッチン上部は折下げ天井でキッチン周りがリラックスした雰囲気に。 各居室は収納付き、玄関ホールにはW2000のトール型下駄箱を設置し、収納力のあるプランになっています。 さらに、ZEH水準の省エネ性能で、環境にも優しい未来を見据えた理想の住まいです。

詳細を見る

住所
埼玉県所沢市東狭山ヶ丘1丁目
交通
西武池袋線「狭山ヶ丘」駅徒歩9分
学区
宮前小学校 徒歩9分 狭山ヶ丘中学校 徒歩12分 桑の実こども園 徒歩9分 さやまが丘保育園 徒歩10分 角栄幼稚園 徒歩10分 こでまり幼稚園 徒歩15分
お店
オザム東狭山ヶ丘店 徒歩5分 業務スーパー小手指店 徒歩11分 ファミリーマート東狭山ヶ丘1丁目店 徒歩2分
生活
中山内科医院 徒歩4分 陽だまりの丘クリニック 徒歩5分 狭山ヶ丘サービスコーナー 徒歩12分
建物面積
113.81㎡(約34.42坪)車庫12.03㎡含
土地面積
70.70㎡(約21.38坪)実測※他通路持分58㎡×1254/6188有
最寄り
西武池袋線「狭山ヶ丘」駅
建ぺい率
60%
容積率
200%
地目
宅地
用途地域
第1種住居地域
取引形態
売主
物件状態
未完成
建築許可番号
第SJK-KX255505070号
概要補足
入居予定:令和8年3月下旬●地域・地区/狭山ケ丘駅東口地区地区計画●設備/東京電力、公営水道・本下水・都市ガス●その他/航空法、景観法、都市再生特別措置法
更新日
2026-05-25
次回更新予定日
2026-06-08
取引条件
の有効期限
2026-06-08

こちらの物件が気になる方はこちら!

  • 見学予約住宅名
  •    
  • 必須第一希望日1
  • 任意第二希望日2
  • 任意お問い合わせ内容
  • 必須お名前
  • 必須メールアドレス
  • 任意郵便番号
  • 必須住所
  • 任意電話番号

※山口企画設計は、個人情報保護法に基づき、「山口企画設計個人情報保護方針」を制定し、情報の各種扱いに応じたコンプライアンスプログラム策定に織 り込むことによって、お客様のプライバシー情報の保護を重視した社内管理体制をしいております。
山口企画設計webサイトではお客様が個人情報を開示することなく、ほとんどのサービスをご利用頂くことができますが、一部サー ビスでのご案内のため、お客様の個人情報を収集する場合がございます。
個人情報とは、お客様を識別できる情報のことを指し、お客様のお名前、ご年齢、お電話番号、メールアドレス、ご住所、お問い合わせの内容など、これらの内の1つまたは複数を組み合わせることにより、お客様個人を特定することのできる情報を意味するものとします。

個人情報の収集

山口企画設計は、以下の内容においてお客様のご連絡先などの情報が必要な場合、またはお客様を特定する必要がある場合、お客様の個人情報を お聞かせ頂くことがあります。
・ 物件資料のご請求
・ 物件やサービス等に関してのお問い合わせ
・ アンケート等へのご回答
・ パンフレット、カタログ等のご請求

個人情報の使用目的

山口企画設計は、お客様の個人情報は、以下に挙げる内容を目的として使用します。

・ お客様からご請求のあった資料、パンフレット、カタログ等をご送付するため
・ お客様からのお問い合わせに対応するため
・ その他、なんらかの理由でお客様と接触する必要が生じたときのため

個人情報の完全性

山口企画設計は、お客様の個人情報の正確性と安全性を維持するため、山口企画設計機密保持基本方針を定め、それに基づいた社内規約の整備を行い、そ の厳密な運用適用によって個人情報を維持管理致しております。

個人情報の開示

法律または訴訟により、山口企画設計がお客様の個人情報の開示要求を受ける場合があります。
また、国家安全保障、法の執行や公益実現に必要と判断した場合、山口企画設計が個人情報を公開する可能性があります。
山口企画設計では、前述のとおりはお客様のプライバシーの保護に注力しています。
お客様の個人情報の安全性を保持するため、個人情報の保護に関する法律(平成十五年法律第五十七号)の尊守を徹底しています。
山口企画設計webサイトでは、他社のWebサイトへのリンクを提供しています。
山口企画設計は、他社によるプライバシー保護対 策に関する責任を一切負いません。
他社のWebサイトをご利用の際は、各社の個人情報に関するポリシーを調べることをお勧めします。
山口企画設計は、個人情報に関するポリシーを随時更新します。
個人情報に関するポリシーの重要な変更は、最新の個人情報に関するポリシーとともに 当Webサイトに掲示します。